18 мая по улицам города пройдет юбилейная 85-я традиционная легкоатлетическая эстафета на призы Администрации городского округа Первоуральск и городской газеты «Вечерний Первоуральск».
В эстафете примут участие трудящиеся предприятий, организаций, учреждений, учащиеся общеобразовательных школ, техникумов, института, клубы любителей бега, ветераны спорта, воспитанники детских дошкольных учреждений городского округа Первоуральск.
Программа соревнований:10:40 – парад участников Соревнований;
11:00 – старт 1 забега (в забеге принимают участие сборные команды воспитанников детских дошкольных учреждений.);
11:15 - награждение победителей и призеров городской эстафеты среди воспитанников детских дошкольных учреждений;
11:30 – старт 2 забега (в забеге принимают участие сборные команды учащихся 6-8 классов средних общеобразовательных школ города);
11:45 – старт 3 забега (в забеге принимают участие сборные команды учащихся 9-11 классов средних общеобразовательных школ города, сборные команды учащихся средних специальных учебных заведений города);
12:00 – старт 4 забега (в забеге принимают участие сборные команды предприятий, организаций, учреждений города);
12:30 – награждение победителей и призеров городской эстафеты;
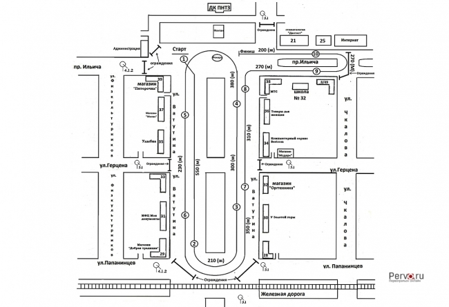
Описание маршрута| 1 этап | мужской | 550 м | Старт на площади Победы от остановочного комплекса до дома № 29 по ул. Ватутина (до пешеходного перехода) |
| 2 этап | женский | 210 м | От дома № 29 по ул. Ватутина (от пешеходного перехода) поворот налево до угла дома № 30 по ул. Ватутина |
| 3 этап | мужской | 300 м | От угла дома № 30 по ул. Ватутина до угла дома № 36 по ул. Ватутина |
| 4 этап | мужской | 380 м | От угла дома № 36 по ул. Ватутина поворот налево вокруг фонаря до дома № 37 по ул. Ватутина (магазин «Милан») |
| 5 этап | женский | 230 м | От дома № 37 по ул. Ватутина (магазин «Милан») до дома № 31 по ул. Ватутина (магазин «Золотой ключик») |
| 6 этап | мужской | 350 м | От дома № 31 по ул. Ватутина (магазин «Золотой ключик») поворот налево до дома № 32 по ул. Ватутина (магазин «Оргтехника») |
| 7 этап | мужской | 310 м | От дома № 32 по ул. Ватутина (магазин «Оргтехника») до дома № 38 по ул. Ватутина (кафе «Уральская кухня») |
| 8 этап | мужской | 270 м | От дома № 38 по ул. Ватутина (кафе «Уральская кухня») поворот направо до угла дома № 8/49 по пр. Ильича |
| 9 этап | мужской | 270 м | От угла дома № 8/49 по пр. Ильича поворот налево до угла дома № 25 по пр. Ильича |
| 10 этап | женский | 200 м | От угла дома № 25 по пр. Ильича до площади Победы |

|
Предварительные заявки от предприятий, организаций, учреждений, либо сборных команд жителей города Первоуральска принимаются по факсу +7(3439) 22-12-96 или на электронный адрес mu_start@prvadm.ru.