Cайт » Первоуральск » Главное » 14 мая эстафета закроет центр Первоуральска. Схема

14 мая эстафета закроет центр Первоуральска. Схема

11-05-2022, 17:07 фото: www.pervo.ru
14 мая эстафета закроет центр Первоуральска. Схема
14 мая 2022 года на Площади Победы состоится 86-ая традиционная легкоатлетическая эстафета на призы Администрации городского округа и городской газеты «Вечерний Первоуральск». В этом году эстафета посвящена празднованию 290-летия Первоуральска.

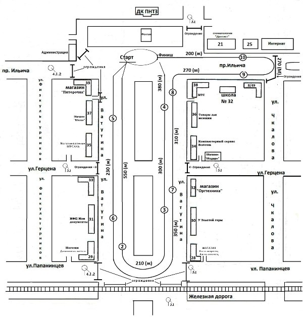
Забеги будут проходить по ул. Ватутина до ул. Папанинцев и обратно и по пр. Ильича до ул. Чкалова и обратно. Соревнования по традиции проводятся среди сборных команд детских дошкольных учреждений, общеобразовательных организаций, средне-специальных учебных учреждений, коллективов физической культуры, предприятий и организаций. Как правило, на старт выходят не менее 500 участников.

На время проведения спортивного мероприятия, с 10:00 до 12:30, будет закрыто автомобильное движение по маршруту эстафеты на ул. Ватутина и пр. Ильича с прилегающих улиц: Чкалова, Герцена, Папанинцев, а также временно изменится движение общественного транспорта.

Программа легкоатлетической эстафеты-2022:

10:30 – открытие городской эстафеты и парад участников.

11:00 – старт 1-го забега эстафеты для сборных команд воспитанников детских дошкольных учреждений. Состав команды: 8 человек (4 мальчика + 4 девочки). Эстафета встречная 8х50 м. Маршрут – на проезжей части Площади Победы.

11:15 – награждение победителей и призёров городской эстафеты среди воспитанников детских дошкольных учреждений.

11:30 – старт 2-го забега эстафеты для сборных команд учащихся 6-8 классов средних общеобразовательных школ города. Состав команды: 17 человек (10 мальчиков + 7 девочек).

11:45 – старт 3-го забега эстафеты для сборных команд учащихся 9-11 классов средних общеобразовательных школ, сборных команд учащихся средних специальных учебных заведений города. Состав команды: 10 человек (7 юношей + 3 девушки).

12:00 – старт 4-го забега эстафеты для сборных команд предприятий, организаций и учреждений города. Состав команды: 10 человек (7 мужчин + 3 женщины).

12:15 – награждение победителей и призёров городской эстафеты.

Заявки на участие в эстафете принимаются от сборных команд по электронной почте: startplan@yandex.ru. Всем участникам обязательно иметь допуск от врача.
14 мая в Первоуральске пройдёт традиционная городская легкоатлетическая эстафета

Лента новостей

fdgdfgdfgdfgdfgdfgdfgdfgdfgfdg
{calendar}
Посетители, находящиеся в группе Гости, не могут оставлять комментарии к данной публикации.